Update : December 2013 The Lightgallery is now closed at lease end of the premises. We thank you for your past visits and your interest in our exhibitions.
The Lightgallery space is available for hire to photographers and artists for private exhibitions. Ideal for personal exhibitions, joint shows, book or product launches, talks, private views, end of year shows for individual artists and photographers, or small groups or collaborations. Located in Porchester Place, just off chic Connaught Street, it is superbly situated for easy West End access, Hyde Park and Oxford Street. Nearest underground station is Marble Arch, a short 5 minutes walk away. Our neighbours include Coco Maya, Ritva Westenius, Fiumano Gallery amongst others. See Connaught Village
GALLERY INFORMATION
Space
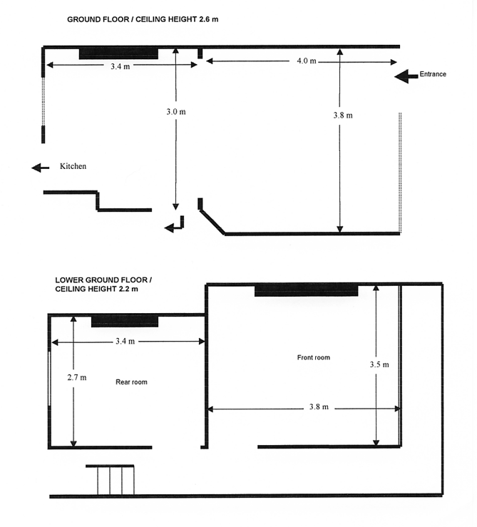
The exhibition area is divided into the ground floor and the lower ground. On the ground floor, there are 20 meters of hanging space with a total display area of 25m2.
The lower ground floor has 23m of hanging space and a display area of 21m2
Hanging system
The gallery uses the clip-rail hanging system, which provides for easy and accurate hanging. We use nylon perlons and self-locking hooks for artwork up to 10kg, or cylinder hooks for lighter works. There are also 5 upright easels in 3 sizes available for window displays, plus a standard cradle for displaying unframed loose artwork.
Amenities
The gallery has perimeter ceiling installed adjustable track halogen lighting which is flexible and has matt white coated walls and ceiling.
There are light kitchen facilities available including mugs, kettle,, microwave oven, a small fridge and wine glasses.
Floor Plans
Location Map
Photographs of the gallery
HIRE TERMS & RATES
1 week : £1,200
2 weeks and longer : £1,000 per week
1. Full use of the premises, including full prep kitchen facilities, wine glasses, alarm system.
2. One private view evening is included per week.
3. All publicity, invigilating, hanging and taking down of exhibition is the hirer’s responsibility.
4. Use of the gallery’s easels, where available.
5. Where possible, the gallery will advice on hanging and framing of artwork.
Please telephone for late availability and reduced rates, and repeat bookings, reductions available for degree shows and colleges
Booking bits and pieces
1. A reservation deposit of £400 per week is required to secure a booking, which is non-refundable.
2. Full payment of the balance is due 3 weeks prior to the exhibition.
3. On cancellations received in writing less than 1 week before the exhibition, no refund will be given.
4. On cancellations received in writing between 3 and 2 weeks before the exhibition, 50% refund will be made.
5. It is the artist’s responsibility to promote and man their own exhibitions. The gallery does not provide any mailing lists and does not place adverts of exhibitions at its own expense.
6. On leaving the gallery after an exhibition, the artist must ensure the space is clean and tidy, the floors must be cleaned and any marks on the walls be removed.
NB : We reserve the right to alter the above rates, prior notice will be given 1 month before changes take effect
Contact For Bookings
Main website www.lightgallerylondon.com
email : info@explorenation.net
Tel : 0208 488 4782
Daniella Cesarei
07968 915 590
Steven Lee
07810 848 476




